8510 N 7TH ST 211Ridgefield, WA 98642
Due to the health concerns created by Coronavirus we are offering personal 1-1 online video walkthough tours where possible.




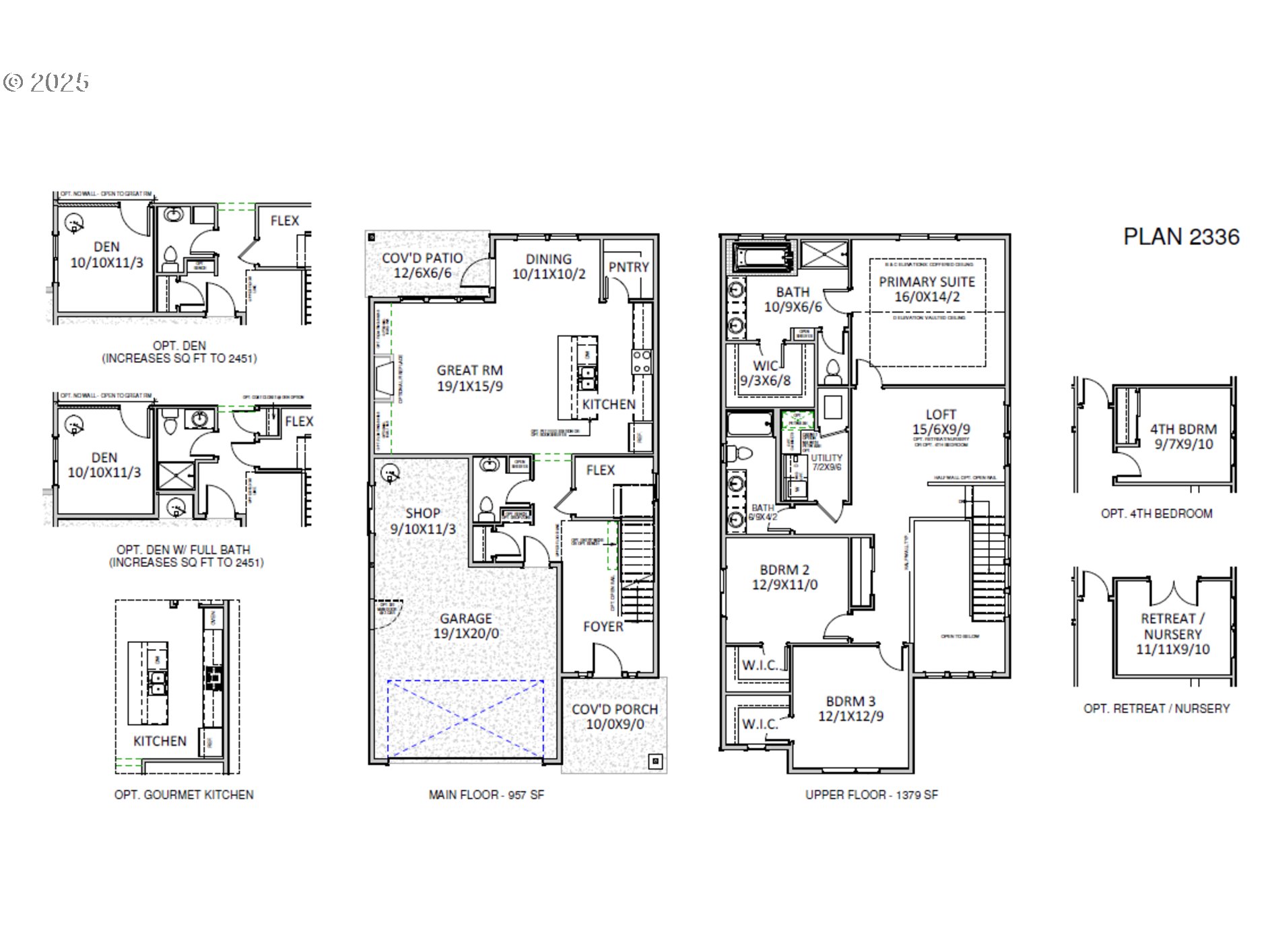
2336 Floor Plan. Starts construction in April. Beautiful new 3 car-garage floor plan with added shop space, great room concept, dining nook, and flex space on the main floor plus a primary suite and three additional bedrooms on the second level. Home features a gas fireplace, 9ft ceilings on main, quartz countertops throughout, gas range, and a large primary bedroom with walk-in closet & soaking tub. High efficiency heat pump with A/C, 65 gallon heat pump water heater, fencing, covered patio, front yard sod and irrigation included. Community features walking trails, green spaces, and park areas. Sample images - actual finishes and colors will vary.
| 3 hours ago | Listing updated with changes from the MLS® | |
| 14 hours ago | Listing first seen on site |
The content relating to real estate for sale on this website comes in part from the IDX program of the RMLS™ of Portland, Oregon. Real estate listings held by brokerage firms other than Holt Homes Realty, LLC are marked with the RMLS™ logo, and detailed information about these properties includes the names of the listing brokers. Listing content is Copyright © 2026 RMLS™, Portland, Oregon. Some properties which appear for sale on this website may subsequently have sold or may no longer be available.
Last checked 2026-03-30 03:22 AM PDT.
All information provided is deemed reliable but is not guaranteed and should be independently verified

