12850 ALTO PARK RDLake Oswego, OR 97034
Due to the health concerns created by Coronavirus we are offering personal 1-1 online video walkthough tours where possible.



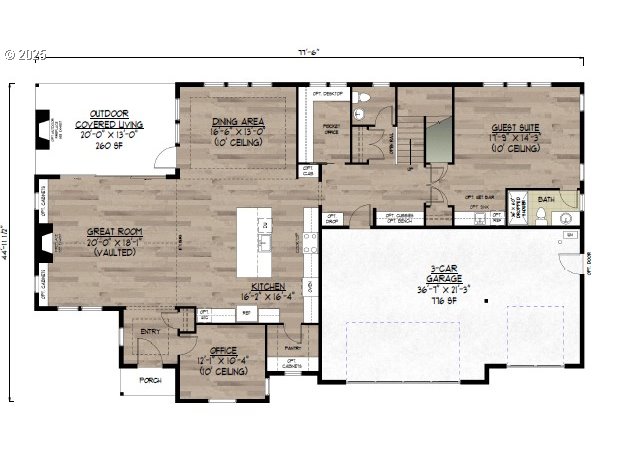
Proudly presented by the winning-most Builder of ALL Street of Dreams; w/ 54 individual awards & 9 Best of Show Awards. This is a Street of Dreams quality floorplan, with access to Lake Oswego's best schools, Forest Hills Elementary, Lake Oswego Junior and Lake Oswego High Schools. The home boasts 5 bedrooms (including a guest suite on the main), 4.5 bathrooms & a 3-car garage. The incredible features included are: Professional grade Monogram Pro Style appliances including a 36" cabinet matching, paneled refrigerator, stainless steel gas cooktop, double ovens & dishwasher. The kitchen proudly wears polished Quartz on the Island & countertops & a decorative tile backsplash. The Kitchen cabinets have been extended up to the 10' ceilings & include extra storage at the back of the island. Adjacent to the kitchen is the oversized Pantry with ample storage, a large dining area and a convenient pocket office. The Great Room is home to a floor-to-ceiling gas F/P with built-ins on each side. There's a "glass wall" stacking slider that leads to the outdoor covered living area with 2 electric heaters & a 2nd gas fireplace. The main floor is also home to a powder bath and an in-home office. Upstairs you'll find three spacious bedrooms, a Media Room and a spacious laundry room. The spa-like Primary Bath has an oversized, mud-set, curb-less decorative tile shower with a free-standing tub & double vanity sinks. You'll also find heated tile floors, a heated towel rack & a spacious walk-in closet with built-in organizers. For convenience & comfort, the home includes Milgard windows, a tankless water heater, High-Efficiency A/C with a 95% Efficient Furnace, a 50AMP car charger & pre-wired for a gas-powered generator for when the power goes out. Enjoy easy access to the I-5 corridor and Boones Ferry Rd. The home is scheduled to be complete in mid to late-February 2026. Seller to provide written waiver from sub-contractors as needed.
| 3 days ago | Listing updated with changes from the MLS® | |
| 5 days ago | Listing first seen on site |
The content relating to real estate for sale on this website comes in part from the IDX program of the RMLS™ of Portland, Oregon. Real estate listings held by brokerage firms other than are marked with the RMLS™ logo, and detailed information about these properties includes the names of the listing brokers. Listing content is Copyright © 2025 RMLS™, Portland, Oregon. Some properties which appear for sale on this website may subsequently have sold or may no longer be available.
Last checked 2025-11-11 05:12 PM PST.
All information provided is deemed reliable but is not guaranteed and should be independently verified


Did you know? You can invite friends and family to your search. They can join your search, rate and discuss listings with you.